城東テクノ株式会社(本社:大阪府大阪市中央区 代表取締役社長:末久 泰朗)は、外装部材ブランド「GAISO」から、破風無し納まりに対応の30分準耐火構造認定を取得した「防火対応 軒天換気材(軒ゼロタイプ 破風レス対応)」を2026年1月23日(金)に発売します。


※鼻隠し(破風)は、準耐火建築物においては「準耐火建築物の防火設計指針」準じた仕様とするなど、所定の性能が確保される仕様とすること。
鼻隠し下地不要!従来の約半分の見付でスマートに納められます今までの軒ゼロ換気材を防火認定品として使用するには鼻隠しが必要でしたが、鼻隠しと鼻隠し下地なしでの納まりで防火性能を立証しました。
「破風レス」でスマートに納められる防火対応の軒天換気材です。

雨仕舞を検証済!屋根全周に施工できます送風散水試験を行い、高い防水性を確認しています。雨風が吹き込みやすい水上側・ケラバ側を含め、屋根全周に施工が可能です。換気材上部に取り付けられている発泡体(EPDM)が野地板との取り合いからの漏水を防ぎます。
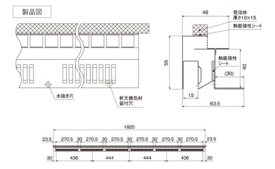
※水上側・ケラバ側での防火認定範囲については、設計者の判断のもと、ご使用ください。防火対応品を使用する場合は、大臣認定番号に適応する納まりにするため、施工説明書や納まり図を参考に、大臣認定書の内容に従って施工してください。

安定した施工性木下地にかませて留め付けることで、製品が安定
するのでビスの留め付けもカンタン。
有効換気面積100平方センチメートル/mを確保
良好な小屋裏換気に貢献。スムーズな換気や通気を実現します。

製品図
【製品情報】
防火対応 軒天換気材(軒ゼロタイプ 破風レス対応)30分準耐火構造認定品
品番:FV-DE055-L18
色型番:ブラック(BK)
長さ: 1,820mm
材質: カラーGL鋼板*(高耐食仕様、厚さ:0.35mm) *JIS G3322 発泡体:EPDM 熱膨張シート:ブチルゴム系
有効換気面積 :100c平方メートル /m
梱包: 6本/ケース
正価 :15,000円/本
付属品 :留付ビス 36本/ケース(6本/袋×6袋)
※ 別売品の役物もございます。詳しくは当社WEBサイトまたは施工説明書をご覧ください。
WEB: https://www.joto.com
----------
【会社概要】
社名:城東テクノ株式会社
代表:代表取締役 社長執行役員 末久 泰朗
創業:1961年10月
資本金:1億円
本社所在地:大阪府大阪市中央区今橋3丁目3番13号 ニッセイ淀屋橋イースト14階
WEB: https://www.joto.com
本製品に関するお問い合わせは下記フリーダイヤルまで
0120-106011
企業プレスリリース詳細へ
PR TIMESトップへ
関連記事







