< プレオープン期間:4月29日(水)~5月10日(日)、グランドオープン:5月12日(火)> 川崎市初の街区公園でのPark-PFI施設が完成!

カフェの全景
川崎市では、登戸土地区画整理事業により令和7年3月に完成した登戸つくりと公園(多摩区)において、公園のさらなる魅力向上を図るため、本市初となる、地域の方に利用される身近な街区公園での都市公園法に基づく公募設置管理制度(Park-PFI)を活用したカフェの整備を進めてまいりました。
この度、同公園内におけるカフェの整備が完了し、4月29日(水)から5月10日(日)まで、提供メニューを限定したプレオープンを実施いたします。また、グランドオープンが令和8年5月12日(火)に決定しましたので、お知らせします。
1 Park-PFI事業概要
登戸つくりと公園におけるPark-PFI事業では、地域から寄せられたカフェや集会所の設置を求める御意見を踏まえ、収益施設としてカフェを設置いたしました。カフェは、木の温もりと大きな軒下が心地よく、地域の人が集い、日常を”ちょっと豊かに”過ごす場所を目指しています。また、カフェはレンタルスペースや集会所としても利用できます。

【これまでの経過】
令和6年 8月 事業者選定結果の公表
令和6年11月 基本協定の締結
令和7年 3月 公園の完成
令和7年 9月 カフェの工事着手

位置図

公園全体図
2 カフェの概要
(1)施設名称NOBORITO ROOF PARK CAFE&BAR
(2)施設概要
飲食施設(カフェ)
(3)事業者
代表企業 株式会社 井出コーポレーション(所在地:川崎市多摩区登戸1891第3井出ビル2F)
(4)プレオープン期間 (メニューを限定して提供します。)
令和8年4月29日(水)~令和8年5月10日(日)
(5)グランドオープン
令和8年5月12日(火)
(6)営業時間
10:00~18:00
※毎週月曜定休日
※季節や状況により、営業時間が変更となる場合がございます。
(7)席数
41席(店内25席、店外16席)
(8)カフェからのメッセージ
NOBORITO ROOFは地域の皆さまからの声をもとに、登戸での何気ない日常が“ちょっと豊かに”なる場所を目指しています。
大きな木の屋根に包まれた空間で、木のぬくもりを感じながら、御家族やペットと一緒にゆったりとした時間をお過ごしいただけます。 こだわりのコーヒーや軽食はテイクアウトも可能です。
また、ピクニックグッズの貸し出しも予定しており、公園内の芝生広場でも気軽にカフェタイムを楽しめます。散歩の途中に、休日のひとときに、思わず立ち寄りたくなる新しい公園の楽しみ方をぜひ体験してください。
3 Park-PFI事業による利用しやすい公園環境づくりについて
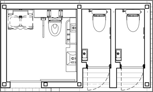
Park-PFI事業区域内にできるカフェは国産木材を活用し建設され、公園利用者が利用できる男女別の洋式トイレ及びバリアフリートイレや地域の方々と協力して野菜や草花を育てることができるコミュニティ菜園が設置されます。※トイレについては、カフェが営業している時間内であれば、公園利用者も利用できます。また、カフェの定休日についても10:00~18:00は利用可能となっております。

配置図

トイレ詳細図
問合せ先
■登戸つくりと公園の事業に関すること川崎市まちづくり局登戸区画整理事務所 小峰
電話 044-933-8581
■公募設置管理制度(Park-PFI)に関すること
川崎市建設緑政局緑政部みどり・多摩川事業推進課 坂
電話 044-200-0510
■NOBORITO ROOF PARK CAFE&BARに関すること
株式会社 井出コーポレーション 齊藤
電話 044-819-5911
企業プレスリリース詳細へ
PR TIMESトップへ
関連記事
-
韓国発の『ALIEN STAGE』より、「ヒョナ」「ルカ」が人気フィギュアシリーズ「るかっぷ」に登場。 -
AGM Mobile、戦地スタイルの三防ショルダーバッグ「AGM Glory」を5月18日より発売 -
『ムーミンの箱庭アプリ』11周年記念キャンペーン開催中! -
【SL 大樹「土津」】ファムツアー催行について【会津ごころと出会う旅】
-
イザベラ・フェラーリ、ファリダ・ケルファ、アレッサンドラ・マストロナルディら多くのセレブがポメラートのジュエリーをまとい2026年「ウーマン・イン・モーション」アワードに登場 -
きゃりーぱみゅぱみゅデビュー15周年フェス『PAMYU FES ~Kyary Pamyu Pamyu 15th Anniversary~』8月22日 ぴあアリーナMMにて開催決定! -
オンラインくじFAPONゲームキャラクターのグッズ化やテレビCM出演権を景品としたゲーム内インフルエンサーイベント開催などゲーム会社向け販売促進メニューを提供【VTuberマーケティングWACTOR】 -
「影のおともだち」が子どもを守る! 遊びから日傘習慣を育む、子ども用晴雨兼用傘が新登場
























